随着鲍里斯宣布辞职,全英上下的焦点都落在了2位候选人前财政大臣Rishi Sunak和外交大臣Liz Truss的身上。
毕竟,这关系着谁要成为下一任英国首相的大问题。
2位候选人也是卯足了劲,各种拉票,纷纷表示要解决通胀之下的生活成本危机。
就在本月,Sunak还发誓如果当选,将多花数十亿英镑来帮助民众度过生活成本危机。
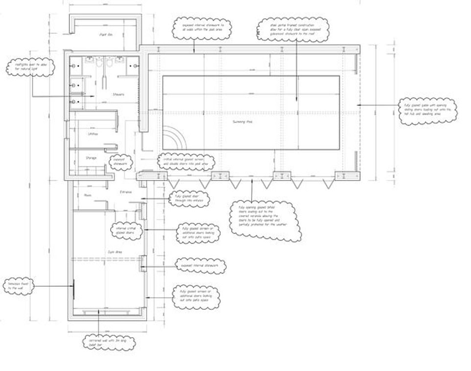
正当民众们面临高昂的账单和燃油费的时候,媒体却扒出,这位巨富候选人Sunak,正在忙着为自己价值200万镑的豪宅增加健身房和网球场以及泳池。
单单泳池的投入,就已经超过了40万镑。
这套豪宅位于北约克郡的Northallerton附近。
经过几个月的初步建设,网球场、健身房和泳池已经初具规模。
这套房对Sunak来说,属于度假用房,一般他会和家人一起度过周末时光。
能从忙碌的生活中抽离,享受片刻惬意的乡村生活,是很多人梦想的日子

而这并不是Sunak夫妻俩的主要住所,他们还在伦敦肯辛顿拥有价值660万镑的豪宅,美国还有海外资产……毕竟作为印度顶级富豪的女婿,Sunak自然不愁没钱花。
对此,很多民众感到不满,今年69岁的退休工人 Leslie Porter表示:
当有些人连饭都快吃不起的时候,他却过着奢靡的生活,不必担心支付不起账单……这令人感到不舒服。
网友们更是直言表示:
向穷人征税会带来丰厚的回报
我们的钱总得有个去处。
好吧……
你怎么看?
















