喜欢家装设计的朋友,很多人都可能听过东方卫视的一档大型家装改造节目《梦想改造家》。
在这档节目中,设计师需要根据委托家庭的诉求对房屋进行改造,帮他们打造梦想中完美温馨的“家”。
大家在感慨设计师拥有化腐朽为神奇的力量时,也会突然惊觉,原来改造不只局限在软装上,利用空间才是创造奇迹的“终极秘籍”。
实际上,英国也有很多类似的改造项目,而且,英国人又格外热衷改造自己的家,这使得改造在英国似乎相当常见……
最近,房产君在浏览新闻时,发现有这么一家人,他们对房屋的改造可以说是将“重构空间”发挥到了极致!

想要改造房屋的这家子总共有5口人,是一对退休的夫妇和三个成年的孩子。
他们住在东苏塞克斯一栋乔治亚风格的别墅里,虽说是别墅吧,但这个房子的年代也挺久了,而且是一个“两上两下”(Two-up two-down)结构的房子。
这种房子在工业革命后期曾在英国风靡过一阵子,之所以叫“两上两下”,是因为这种房子一层有两间主房,楼上有两间卧室。
不仅如此,这套房子还是一栋英国国家二级保护建筑,也就是类似于咱们常说的“物质文化遗产”,拆改扩都要受到很大的限制。
这么一看,这家人住房需求的矛盾就非常明显了!
三个小孩都已经成年,对自我空间的需求与日俱增,但原有的房子空间有限,无法容纳这么多的人居住;另外,二级保护建筑改造需要考虑方方面面,传统的改造余地不大。
于是,百般无奈之下,这家人找到了设计师Robert Wilson。
在了解了房主的需求后,设计师Robert提出了自己的想法:既然原有的房子改造余地不大,不如我们就另辟蹊径,将房子横向延伸一些。
照着这个思路,Robert改造出来的这套房产别说还挺好看!
改造前,这套房子从前面来看长这样,红色圈起来的部分是原有的房屋,黄色的部分是先前就扩建过的车库。

那么,Robert新改造的部分在哪里呢?
原来,他是在原有房子的背面新增了一部分,也就是下图蓝色区域位置。Robert在扩建部分还使用了对比鲜明的材料,以区别于原来的建筑。

那很多人可能非常疑惑,这样的扩建方式确实解决了二级建筑改造暗度大的问题,但不是很影响原有房子的采光吗?
实际上并不会!因为Robert在这里利用了一个很常见但又非常巧妙的做法,那就是大面积运用玻璃。
首先,新扩建的部分采用了非常多的玻璃窗,甚至在一楼的公共区域,有一面墙都运用了玻璃。

而且,在新旧房屋相接的部分,Robert也并没有直接让这两部分连接在一起,而是打造了一条很有质感的“玻璃隧道”。

连接两边房屋的楼梯就位于下方,楼梯的侧部也采用了玻璃挡板,以最大化的引入光线。

而且,普通房屋引入的是光线,这套房屋引入的却是“光线的艺术”。
随手一拍,光影斑驳的质感便跃然照片上。

从楼梯的尽头瞥去,尽收眼底的都是一望无际的草坪和郁郁葱葱的绿树,美感十足~

不仅解决了采光,更值得一提的是,这套房子在扩建后直接变成了“四居室”,此外,还有了四个浴室,房主一家每个人都有了属于自己的独立空间。
让我们从后院的玻璃移门开始,一路感受下这个新扩建部分的魅力~
从后院的玻璃移门进来后,就到了新增的餐厨区,开放式的现代化厨房让整个空间格外通透,巨大的玻璃移门让用餐时就能欣赏到院内的景色,十分赏心悦目。

设计师利用厨房中岛来分割空间,这个中岛兼具了烹饪,储物、用餐的多重功能,颇为实用。
餐厨区的一旁就是新的客厅,Robert选择了一个红色的沙发给屋子增添亮色,现代化的家具与原来传统风格的墙面相“碰撞”,产生了一种独特的美感。

从与餐厨区相连的门就可以来到我们上面说过的“玻璃隧道”,两侧的墙面上,设计师也挂上了精美的油画,让白墙显得不再单调无聊。

正对着新增餐厨区的,是原来的旧客厅,不过,这里已经被重新装修过了,但设计师还保留了原有的壁炉。

在一楼“玻璃隧道”走廊的尽头,是一间小小的书房。

书房的面积虽然很大,但却格外舒适,靠窗的位置还专门打造了飘窗,没事,坐在这看看书,赏赏景,真的是非常放松和惬意。

沿着“玻璃隧道”内的楼梯,就可以来到二楼,主卧套间(一间卧室,一间浴室、一间更衣室)几乎占据了扩建部分的整个顶楼,主要供这对退休的夫妇使用。

卧室温馨舒适,正对床头的是一整面墙的书柜。

旁边的浴室非常宽敞,可以放下双盥洗台,还有一个步入式淋浴间。

大大的落地窗可以让这房主在沐浴时欣赏到美丽的风景。

浴室的左边是一个T形的更衣区,里面有一排排的衣柜。

另一间浴室的设计也十分精妙,这一大排白色的柜子会让人误以为是另一个衣柜。

但在打开后却会发现,这里实际上是一个隐藏的洗衣房。

几乎所有的浴室都做到了干湿分离,干净卫生。

再回到院子里,设计师对原有的院子也进行了一番“改造升级”。

院子里原有的一个小屋,也采用了类似的改造方法,新建了一个向外扩展的“玻璃亭子”,让这里成为了日常休闲会客的好地方。

整个院子的面积虽然没有很大,但设计的非常错落有致。

石阶,绿植,鲜花,点缀着影影绰绰的灯光,精美如画一般。

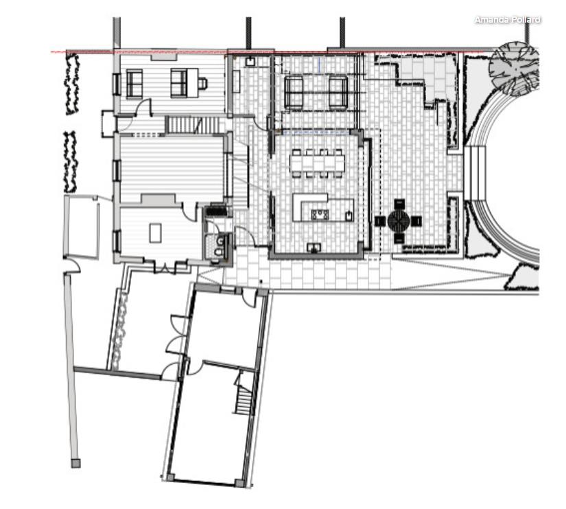
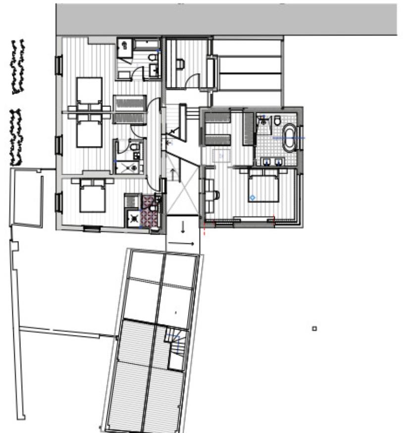
整体来看,改造后的平面图如下(右侧为新增部分):
(一楼)

(二楼)

最后,我们再来复盘一下Robert的改造思路:由于原本的房子面积小,而且动工的余地不大,所以就想到了扩建新的部分,但因为不能纵向扩建,就选择了横向扩建,然而横向扩建比较麻烦的一点就是可能会影响原有房子的采光,于是,就有了“玻璃隧道”的设计。
正如有人所说的,“改造房子不过是为了让人更体面的生活下去”,因此,要以居住者的需求为出发点,Robert的设计也算是抓住了客户的痛点吧~
不知道这样的设计,你喜欢吗?
















