我们之前跟大家介绍过很多扩建房产的案例,都是把自家房子面积增大,比如让卧室增多等,从而房子的市场价格也会提高。
但今天,我们给大家分享一个把卧室数量减少后获利的故事……
故事的主人公是西伦敦的开发商本·威尔逊(Ben Wilson)。
近日,他向大家分享了自己如何冒着巨大的风险,将公寓从3室改成2室,最终获得了36.6万英镑(约合320万人民币)回报的事。
10个月前,他以101.4万英镑的价格买下了伦敦Earl’s Court地区的一套3居室公寓 。
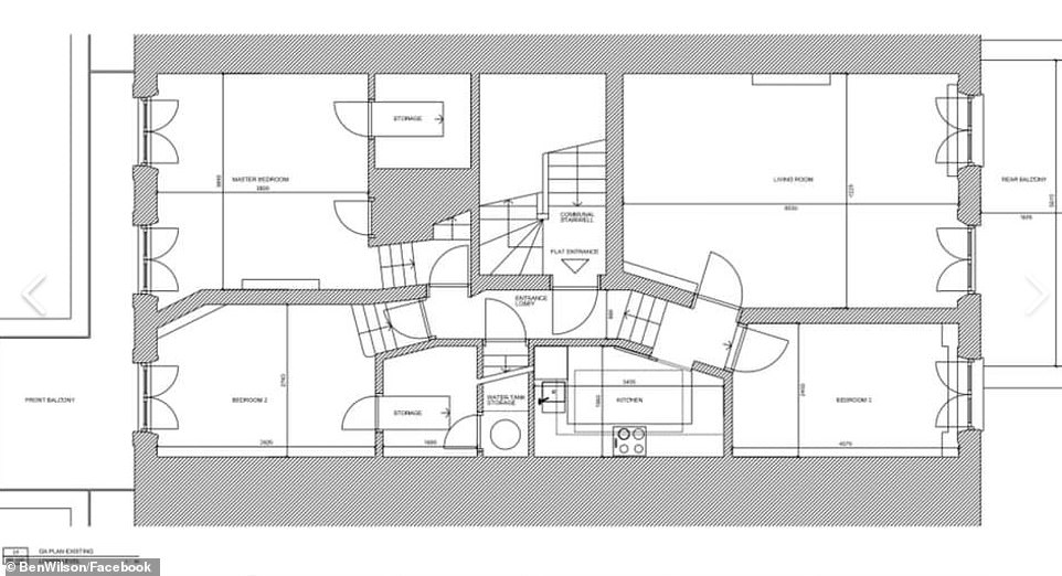
原本的房产有3个卧室,1个小厨房,一个客厅等。
如下图所示:左侧为靠近马路的一侧,也就是房产的前方。左侧有2个卧室,厨房,客厅在右侧。

接下来的10个月时间里,威尔逊开始了费心地设计和改造。
他减少了一个卧室,但却恢复了房产的时代特征,并增加了一系列豪华功能。
改造后的房产的布局更加开阔,厨房和客厅被移到了另一侧(原本2个卧室所在的一侧),并配有玻璃窗,增加采光。
如下图所示:左侧靠近马路的一侧为客厅厨房,右侧为一大一小2个卧室

虽然卧室的数量减少了,但是浴室的数量不变,还是2个。
前后花了大概20万英镑,改造终于完成了!
给大家看一组对比图:
改造中

改造后
厨房的采光非常棒,客厅也宽敞舒适。

以白色为主调的家具配置,尽显惬意温馨
客厅和厨房的旁边是学习工作区。

用大理石打造的浴室,干干净净,搭配金色点缀,相得益彰!

卧室被安排在远离道路的一侧,更加安静,能睡个好觉。

改造之后,这套房产以158万英镑成功卖出!利润率约20%!
值得注意的是,这套房产是这条街上成交价格最贵的公寓,每平方英尺的价格高达1,600英镑。
对于这个大胆的改造,威尔逊表示:
“在伦敦,令人眼前一亮的2居室公寓肯定会被设计不合理,有些破旧的3居室公寓受人欢迎。
虽然卧室少了一个,但是我采用最高规格翻新了房产,并更加合理布局。打造大理石浴室,选用德国高档厨具,还配有防火窗等,极大限度地让阳光照射进来。”
对此,很多专业人士也认为威尔逊非常具有创造性和眼光,为地产行业的改造市场创造了一个新的思路。
















