房产君是一个很喜欢房子的人,平常不但喜欢买房,卖房,还喜欢各种看房…
看房的时候看地段,看设施,看装修,看设计结构… 特别是看一些豪宅的时候,总能得到不少启发。
所以平常也有了一个习惯,闲的时候总爱去房产交易网站上去四处逛逛。 不但去看一些自己感兴趣继续投的地区,又或是去找找看哪些房子有改造的潜力,同时,也会去看看伦敦的豪宅市场。
觉得,看这些上千万的豪宅,总是一种视觉上的享受,不知道你有没有相同的想法?
那今天就带大家到现在伦敦的豪宅市场上去看一看,看看现在能公开说的,在售的超级豪宅都有哪些?
当然我去看的还有不少豪宅,进去不能拍照不说,光是看房都要先签NDA保密协议,这篇里就不说这类的了。 大家如果真的感兴趣买豪宅,市场上其实有比这篇里更好看的。
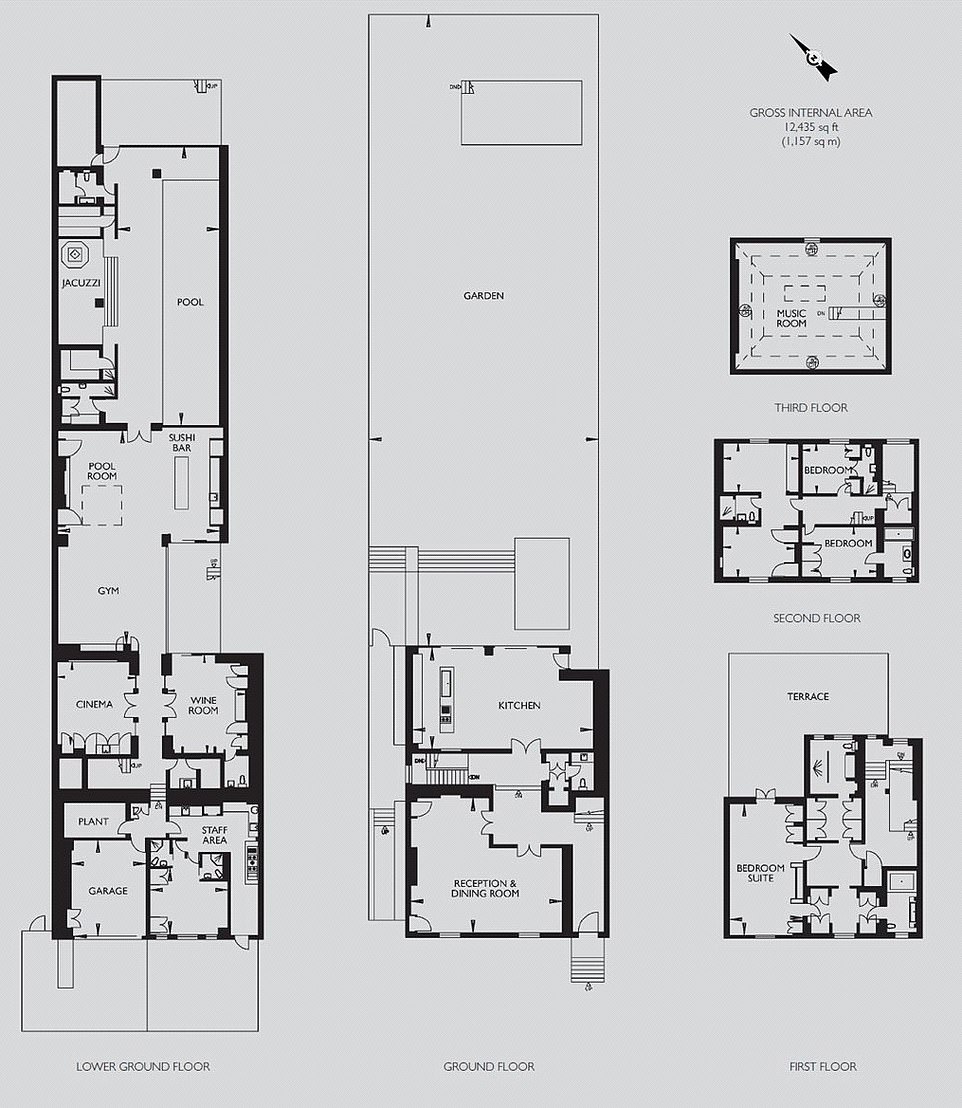
1.Buckingham Gate
售价:5,500万英镑
这套豪宅位于伦敦圣詹姆斯公园。

入住这里,意味着可以和英国女王当邻居,因为女王的白金汉宫就在附近。

房产共有7层,8个卧室,配有厨房,餐厅,客厅,娱乐室,媒体室,五个更衣室以及两个院子

房产内部面积为14,227平方英尺,是英国国家二级保护建筑。
此外,房产还配有地下停车场,电梯,酒吧,游泳池,健身房,桑拿浴室,理疗室和两个更衣室……

2.Merton Lane
售价:4,000万英镑

这套独栋别墅位于伦敦London N6,共有10个卧室。

占地足足有2英亩,建筑共有3层,还配有员工宿舍。

房产配有电梯,室内金碧辉煌。
室内采光极佳,可以欣赏自家花园和Hampstead Heath公园的美景。

此外,还配有私人泳池和Spa设施。

3.Elsworthy Road
售价:2,850万英镑
这套房产位于伦敦西北部Primrose Hill公园的对面。

房产配有电梯,可以直达所有楼层。

室内设有地暖。

还有两个储藏室和私人酒窖等。

4.Mansion House
售价:2,995万英镑

这套房产位于伦敦顶级富人区Westminster,共有7个卧室。
2011年之前,这套房产一直都是自由民主党的总部。

这套房产被认为是伦敦保存最完好的乔治亚建筑之一。

配有大理石地板,高端大气

是国家二级保护建筑。

房产配有可以容纳8人的电梯,水疗中心,健身房,按摩浴缸,屋顶露天和私人酒窖等。

5.Wellington Court
售价:3,250万英镑

这套公寓位于伦敦骑士桥,共有6个卧室。骑士桥一直以来被认为是伦敦的文化中心,自然历史博物馆和维多利亚与阿尔伯特博物馆就在附近。

房产配有私人影院,健身房,水疗中心,员工宿舍和电梯等。

房产的室内面积为6,886平方英尺,可以欣赏海德公园的壮丽景色。
阳光明媚的时候,和三五朋友在屋顶露台小聚,真是惬意的享受!

6.Chapel Street
售价:2,800万英镑

这套房产位于伦敦Belgravia SW1X。

共有6个卧室,为永久产权。

房产配有大花园,健身房,水疗室,泳池,影院和电梯。

最令人眼前一亮的是这里的私人酒窖。

室内的玻璃屋顶可以让阳光直接照射进来。

因为地理位置优越,住在这里可以轻松抵达伦敦梅菲尔(Mayfair)米其林星级餐厅。

7.Upper Phillimore Gardens
售价:2,995万英镑

这套房产位于肯辛顿。在伦敦最美丽的两个公园-荷兰公园和肯辛顿宫花园之间。
共有10个卧室和10个浴室。
此外,还配有私人泳池,屋顶露台,影院等。
其中,私人影院可以容纳12人。
8.Hamilton Terrace
售价:2500万英镑

这套房产位于伦敦St John’s Wood。
房产共有5层,有5个卧室,2个厨房,一个客厅,一个泳池,一个健身房,一个酒吧,一个影院等。

室内面积为12,453 平方英尺。
房产始建于19世纪50年代,经过不断翻新才有了如今的样貌。
9.Addison Road
售价:2,500万英镑

这套房产位于Holland Park附近,共有7个卧室。
配有电影院,泳池,健身房,蒸汽浴室和可以通往所有楼层的电梯等。
走出去,还有一个大花园。
房产距离Holland Park公园很近,该公园有乡村步道,网球场和儿童游乐区等,是伦敦人最喜爱的公园之一。

10.Winnington Road
售价:2,300万英镑

这套房产所在地区的伦敦邮编为N2,共有8个卧室。

房产配有阳光房,游戏室,健身房和泳池等。

室内面积为 15,737平方英尺,占地面积超过半亩,还配有一个精致的花园。

以上就是伦敦目前正在出售的部分超级豪宅,你最喜欢那一套?
欢迎留言哦!
如果您对伦敦房产感兴趣,也欢迎加客服微信BuyHomeUKSerena咨询!
            
		















