近日,在英国的一场官司吸引了媒体的广泛关注
对簿公堂的双方都不是一般人:
起诉方为英国一对百万富翁夫妇Stuart 和 Naomi Russell
被起诉方是一对小有名气的建筑商夫妇Peter 和Linda Stone

2006年,富豪Russell夫妇花费了365万英镑,在北伦敦的Highgate买下了一套房产。

为了能拥有自己梦想中的家,这对夫妇准备把这套房子推平,然后再花费200万英镑,建造一栋符合自己要求的别墅。
于是Russell夫妇找到了建筑商Stone夫妇,并告诉了他们自己的预算为200万英镑,希望在1年时间里,打造出自己梦想的家。
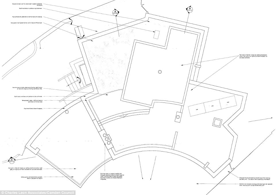
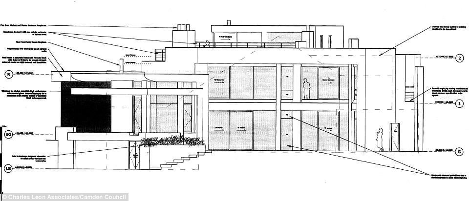
经过协商,Stone夫妻设计出了建筑图纸

接着,就按照Russell夫妻的要求开始了建设

Russell夫妻原本以为,一年之后就能住进自己梦想中的家…
万万没想到,一年过去了,三年五过去了,五年过去了…
还没完工!

就这样前前后后的,用了近12年时间才完工!
费用也从一开始预计的200万英镑,飙升到500万英镑!

收到建成的豪宅,Russell夫妻并没有感到欣喜,因为工期拖的时间太长,费用也增加了300万英镑

建成的豪宅也没有完全符合他们的预期

思前想后,Russell夫妻认为,是因为建筑商的错误处理和缺乏远见,导致了自己浪费了10年时间,还多花了300万英镑,结果建成的房产也就那样,实在是令人愤怒

于是,Russell夫妻一纸诉状,将建筑商Stone夫妻告上了法庭
对此,建筑商夫妻也感到委屈。
他们认为,是Russell夫妻过多的要求和一直在变化的选择导致工期一拖再拖,费用也逐渐增多,自己也感觉很无奈。
就这样,12年过去了,多花了300万英镑,百万富翁夫妻也没能住上自己梦想中的家…
















