今天给大家介绍一个房产翻修改造的故事。
在伦敦北部,一对夫妻想把自己出租多年的2室2卫公寓收回自住。在住进去之前,他们找来了专业的设计师Claudia Dorsch,希望她能重新把房子设计翻修一下,要求是充分利用空间,并将室内与室外景观建立更多的联系。
改造后的效果令人感到惊艳!

阳台上,摆放着绿植,与不远处的绿树遥相呼应!
设计师表示:“房主是非常热爱户外运动的人。因此露台是整个设计的重点。公寓坐落在爱德华七世时代的大房子里景色宜人,花园位于阳台的楼下,属于另一户人家,因此阳台建立了与室外的联系。我们改善了阳台的舒适度,让阳台感觉更加宽敞。”

改造之前的厨房是这样的平平无奇。

改造之后的阳台,视野开阔。
设计师把木头粉刷成了白色,让室内更加明亮。
此外,还在室外安装了电加热器和遮光板,可以远程操作,这意味着房主可以全年享受阳台。
橱柜里有洗衣机等,橱柜空间充足,可以厨房物品。还有一个梯子,方便使用高层的柜子。

厨房的水槽下有一个抽屉,抽屉呈U形,围绕着管道,充分利用空间。还配有洗碗机,冰箱,烤箱等。
厨房的灯充满设计感,不同类型的照明搭配瓷砖的墙面,更有装饰性。
对此,设计师表示:“我们想重新定义空间。”

厨房有各种柜子,可以放置很多食物和物品等。

因为主人有一只宠物狗,于是设计师还为狗狗设计了休息空间,就是这个浅蓝色的抽屉所在地方。

厨房的后面是通往楼上的楼梯,下图左侧的橱柜中有互联网设备,还有挂大衣的空间。

走上楼去,右侧又是很多橱柜,左侧有一面镜子和些许抽屉。
改造之前的客厅是这样的。

改造之后,这里焕然一新!百叶窗取代了之前的窗帘,极大限度地让阳光照射进来。

浅色的地毯,沙发搭配紫色的抱枕,椅子。角落里还有一件古董家具。

设计师保留了原来的壁炉,但增加了一个燃木炉子。地板选用胡桃木,更有质感。

用餐区是这样的,旁边就是摆放美酒和各种杯子和装饰品的壁橱,很有层次感。

吊灯也增添了艺术感。

改造前的主卧是这样的:

改造后的主卧配有下拉的梳妆台,节省空间还实用。
设计师表示:
“房主想要一个可以舒缓情绪的卧室,所以我们选择了深蓝色。但窗帘和床上用品,我们选择了白色,这可以形成对比,让颜色更好地贯穿整个平面。”

在床头,还挂了一副房主收藏的艺术作品。

床的另一侧是木质橱柜和一个色彩丰富的小地毯。

在前往卫生间的地方,设计师又增添了很多衣柜。

打开衣柜,还有很多抽屉。
卫生间里粉红色的瓷砖俏皮可爱。

第二间卧室被改造成了家庭办公空间,因为房主夫妻并没有子女。相比卧室,他们更需要一个办公空间。
同样的,这里也有大量的柜子和架子。

此外,这里还摆放着沙发床。
第二个卫生间有一个浴缸。

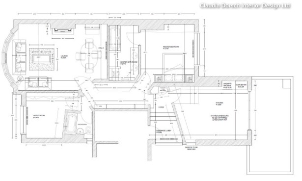
改造之前的平面图是这样的:

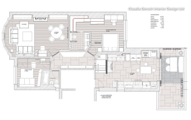
改造之后是这样:

总的来说,这个设计绝对是充分利用空间的典范!
- 随处可见的橱柜,架子,让房间看起来非常整齐的同时,拥有了更多的储物空间。
- 原本普通的不能再普通的房产,通过更换地板,瓷砖,窗帘,增添颜色和吊灯等,变得现代温馨,每一个细节都几近完美。
- 与此同时,还尽可能地让阳光照射进来,整个房产也亮堂起来。
- 根据房主的需求,灵活地将第二见卧室改成了书房。
- 尤其是那个粉红色的浴室,少女心满满!
这个设计,你中意吗?
















