在伦敦南部新克罗斯(New Cross)有一栋在售的房产,一上市就引起了大家的关注。
因为这套房产简直就是在“夹缝中求生存”…

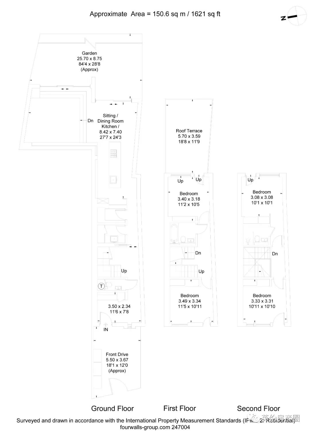
房产前窄后宽,最窄的地方宽度只有11英尺,约为3.4米,房产的最宽的地方为28英尺,约为8.5米。夹在两栋维多利亚风格的别墅之间。

在改造之前,小房子在夹缝中看起来破败不堪
如下图所示:改造前的样子

在建筑师Selencky和Parsons精心设计改造之后,才有了家的模样,改造项目用时为15个月。

而这个房子最关键的部分,是虽然它前面只有3.4米宽,但是后面的拿到了左边隔壁的花园,相当于隔壁的花园也是自己的地,这样就可以在后面花园部分进行扩建。

除了自己的这3.4米外,在后面花园的部分,设计师进行了一个L形的扩建,变成了一个舒适的客厅。
整栋楼完成的效果,
夜幕降临,美不胜收。

我们从户型图也可以看出来。
整个三层楼的下面部分是这套房子原先的宽度。
一楼只安排了楼梯,卫生间和厨房,后面花园L型扩建的部分,扩建成了客厅和餐厅。
二楼和三楼每层楼安排了两个卧室,整套面积150平米,一共四个卧室。

房产采用了大量的玻璃窗,极大限度让阳光照射进来。

房产共有4个卧室。

客厅宽敞明亮。

书房简约大方

开放式厨房,清新自然
阳光洒在客厅里,惬意的午后舒适美好!
卫生间,干净整洁
房产共有3层,底层有厕所,杂物间,储藏柜,葡萄酒储藏室,开放式厨房和餐厅。

楼梯的设计非常巧妙,吊灯增加了照明。

值得一提的是,房产是智能房屋,配有地暖和智能声控门。
走出去,院子里种满了充满异国情调的棕榈树,蕨类植物和热带花卉。

目前,房产的售价为125万英镑。

可以看出,这套房子的改造,最关键的部分,是拿到了邻居的后院,这样可以在后院进行L型拓展,从而拓展出一个客厅的起居空间出来。
当然,从构型上看,也有可能这套房本身就是隔壁邻居在自家空地上加建出的一套小房,在改造的过程中,通过牺牲花园,让这套小房的价值成倍上升。
总之,这样的改造,在伦敦还是很少见的。

不过,如此别致的房产虽然少见,但却不一定会好卖。
毕竟,New Cross在伦敦不是一个特别好的区,这个区四房的平均价格也就在60-80万英镑之间。 
在伦敦南部新克罗斯(New Cross)有一栋在售的房产,一上市就引起了大家的关注。
因为这套房产简直就是在“夹缝中求生存”…

房产前窄后宽,最窄的地方宽度只有11英尺,约为3.4米,房产的最宽的地方为28英尺,约为8.5米。夹在两栋维多利亚风格的别墅之间。

在改造之前,小房子在夹缝中看起来破败不堪
如下图所示:改造前的样子

在建筑师Selencky和Parsons精心设计改造之后,才有了家的模样,改造项目用时为15个月。

而这个房子最关键的部分,是虽然它前面只有3.4米宽,但是后面的拿到了左边隔壁的花园,相当于隔壁的花园也是自己的地,这样就可以在后面花园部分进行扩建。

除了自己的这3.4米外,在后面花园的部分,设计师进行了一个L形的扩建,变成了一个舒适的客厅。
整栋楼完成的效果,
夜幕降临,美不胜收。

我们从户型图也可以看出来。
整个三层楼的下面部分是这套房子原先的宽度。
一楼只安排了楼梯,卫生间和厨房,后面花园L型扩建的部分,扩建成了客厅和餐厅。
二楼和三楼每层楼安排了两个卧室,整套面积150平米,一共四个卧室。

房产采用了大量的玻璃窗,极大限度让阳光照射进来。

房产共有4个卧室。

客厅宽敞明亮。

书房简约大方

开放式厨房,清新自然
阳光洒在客厅里,惬意的午后舒适美好!
卫生间,干净整洁
房产共有3层,底层有厕所,杂物间,储藏柜,葡萄酒储藏室,开放式厨房和餐厅。

楼梯的设计非常巧妙,吊灯增加了照明。

值得一提的是,房产是智能房屋,配有地暖和智能声控门。
走出去,院子里种满了充满异国情调的棕榈树,蕨类植物和热带花卉。

目前,房产的售价为125万英镑。

可以看出,这套房子的改造,最关键的部分,是拿到了邻居的后院,这样可以在后院进行L型拓展,从而拓展出一个客厅的起居空间出来。
当然,从构型上看,也有可能这套房本身就是隔壁邻居在自家空地上加建出的一套小房,在改造的过程中,通过牺牲花园,让这套小房的价值成倍上升。
总之,这样的改造,在伦敦还是很少见的。

不过,如此别致的房产虽然少见,但却不一定会好卖。
毕竟,New Cross在伦敦不是一个特别好的区,这个区四房的平均价格也就在60-80万英镑之间。 
如果这套房子就因为装修设计好,而要多出接近一倍的溢价的话,也会让不少买家望而却步。 毕竟100多万的预算,同样的价格,买家在伦敦完全可以有更多更好的选择。
规规整整的房产,无论是投资还是自住,都更加稳妥。日后如果想出售,也更容易卖出呢。















